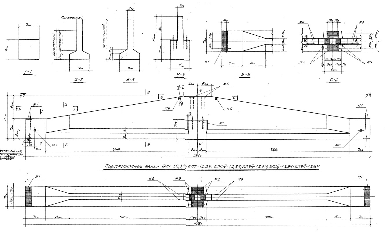
Балка подстропильная БПП 2 предназначена для использования в строительстве как элемент каркаса кровли. Изготовлена из железобетона, что обеспечивает высокую прочность и долговечность конструкции. Балка имеет специальные отверстия для удобства монтажа и крепления к другим элементам кровли.
Балка подстропильная БПП 2 широко используется при строительстве жилых, коммерческих и промышленных зданий. Она применяется для создания каркаса кровли, обеспечивая необходимую жесткость и надежность конструкции. Балка подстропильная БПП 2 идеально подходит для строительства крыш с различными конфигурациями и нагрузками, обеспечивая безопасность и долговечность всей кровельной системы.









